Орловский район, д. Жилина,
ул. Болховское шоссе, д.66
ragulin_orel@mail.ru
Vk

Двухэтажный жилой дом с террасой «Валери»

Задать вопрос по проекту и его стоимости
Помощь
в кредитовании
Технические характеристики
  • Площадь 92,0 м²
  • Этажность 2 этажа
  • Габариты 11*8
  • Количество спален 4 шт.

Описание проекта

Классический вариант двухэтажного жилого дома с четырьмя спальнями.
Полезная площадь дома — 92 м2, площадь террасы — 23 м2, высота потолков — 2,5 м.

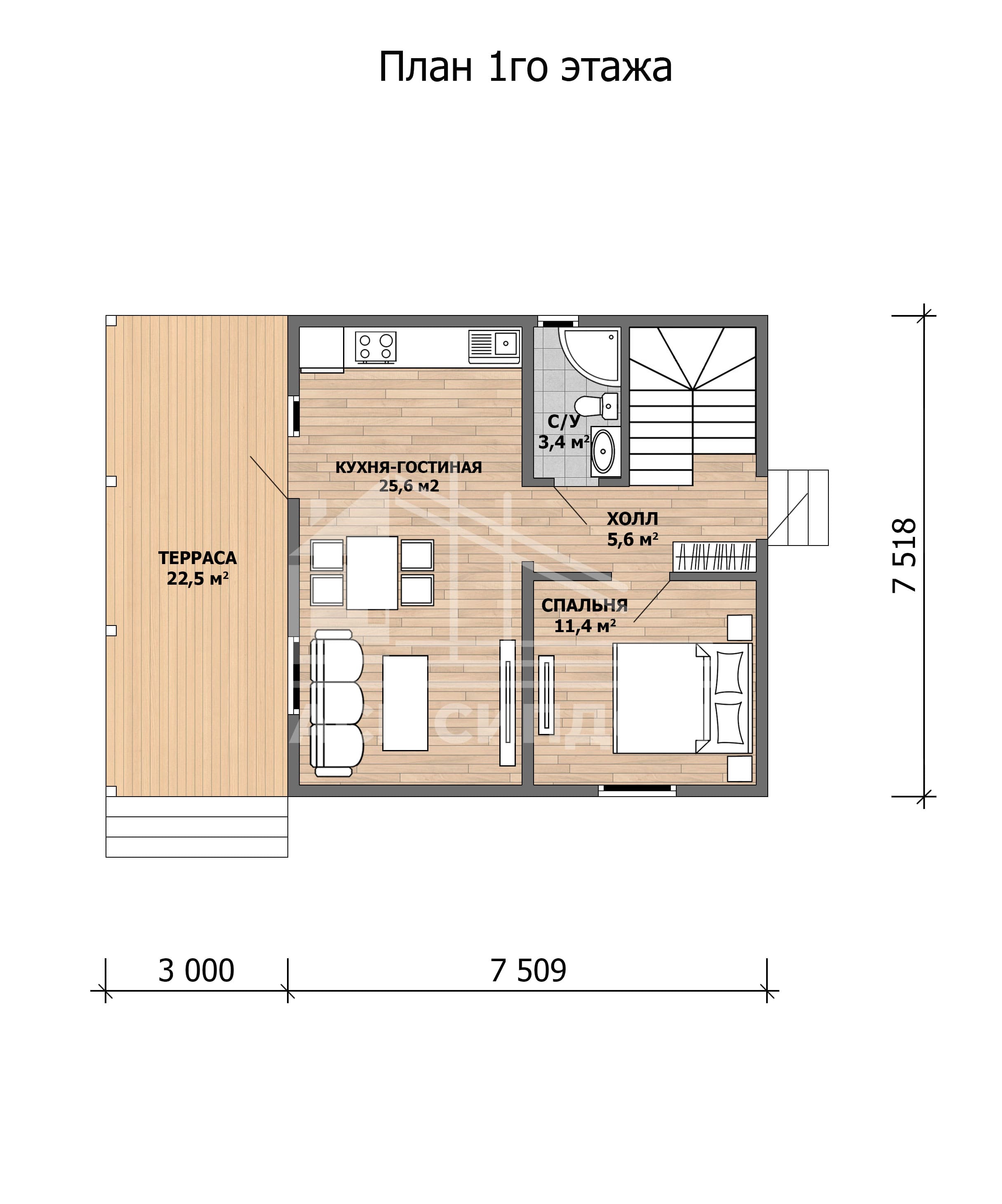
В доме на первом этаже:
- кухня-гостиная — 25,6 м2
- спальня — 11,4 м2
- холл — 5,6 м2
- санузел — 3,4 м2

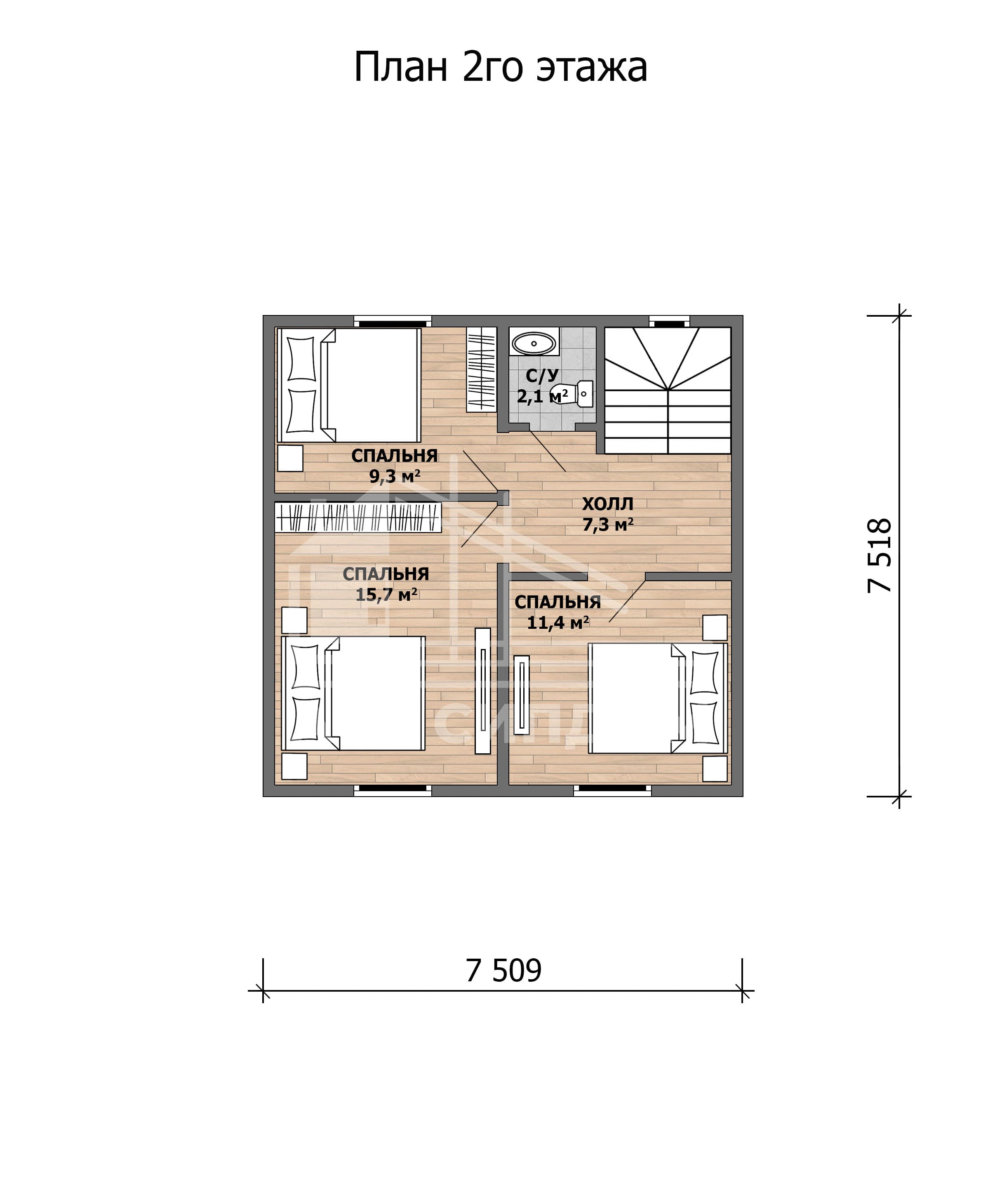
на втором этаже:
- три спальни — 15,7 м2, 11,4 м2, 9,3 м2
- холл — 7,3 м2
- санузел — 2,1 м2

Хотите построить дом?

Оставьте свои данные

и мы подготовим подробный расчет стоимости
строительства вашего дома

Рассчитать стоимость